Turó Park/Barcelona. Exclusivo local comercial
- 1.650.000€
Resumen
- Local o Nave
- 0
- 4
- 673.00 m²
- 1966
Descripción
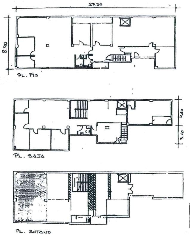
Excelente Oportunidad de Inversión en Turó Park. ~~•673 metros cuadrados construidos.~•3 plantas conectadas por escaleras.~•Ascensor/montacargas para facilitar el acceso a todas las plantas.~•12 oficinas de varios tamaños.~•4 baños.~•Propiedad en buen estado.~•2 entradas independientes. Desde calle o por primera planta del edificio.~~Actualmente alquilado con una rentabilidad estable y atractiva, pero también cabe la posibilidad de salida de los inquilinos para montar otro negocio. ~~Extras destacados:~•Sistema de aire acondicionado para climatización óptima.~•Calefacción.~•Puerta blindada que garantiza la seguridad del local.~ ~¡No dejes pasar esta oportunidad! Contáctanos para obtener más detalles o concertar una visita. ¡Tu inversión en Turo Park te espera!~~Gastos de compra e impuestos no incluidos en el precio.~Mobiliario no incluído en el precio.~~~
Clase energética
- Clase energética: E
- Índice de Rendimiento Energético Global: 145.4
- A+
- A
- B
- C
- D
- 145.4 | Clase energética EE
- F
- G
- H
Detalles
Actualizado en abril 29, 2026 en 2:06 pm- ID del Inmueble B5-LOCALB
- Precio 1.650.000€
- Tamaño del Inmueble 673.00 m²
- Habitación 0
- Baños 4
- Año de construcción 1966
- Tipo del Inmueble Local o Nave
- Estado del Inmueble Vender
Dirección
Abrir en Google Maps- Dirección: Turo Park, Barcelona
- Código postal: 08021



























