Construye tu vivienda en Sant Fost, Proyecto incluido
- 170.000€
- 170.000€
Resumen
- 0
- 0.00 m²
Descripción
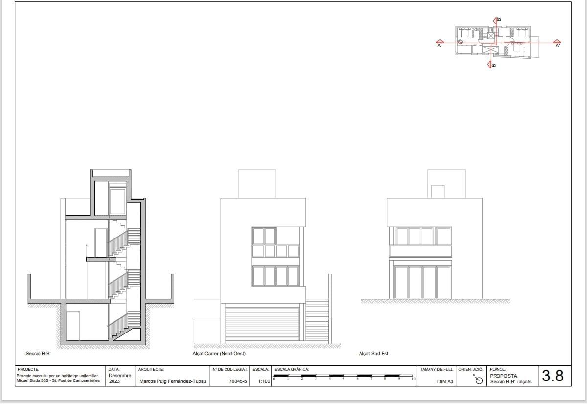
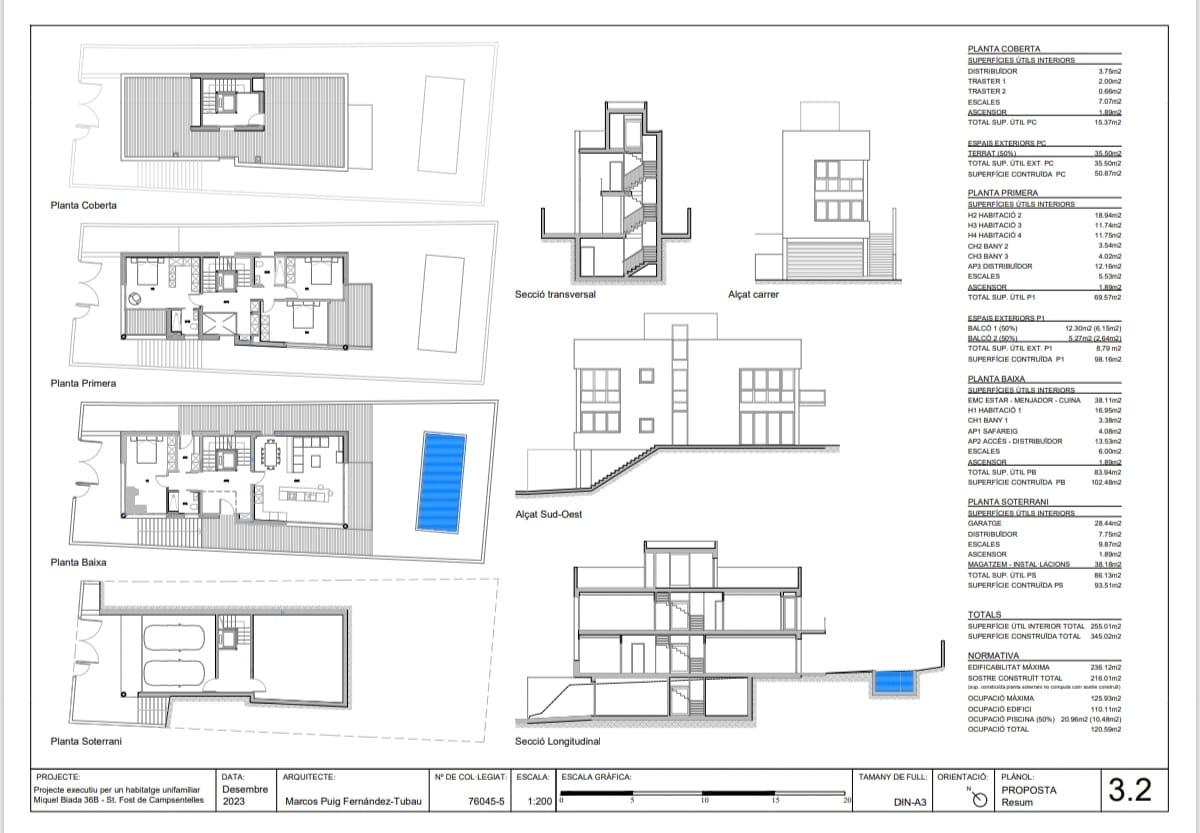
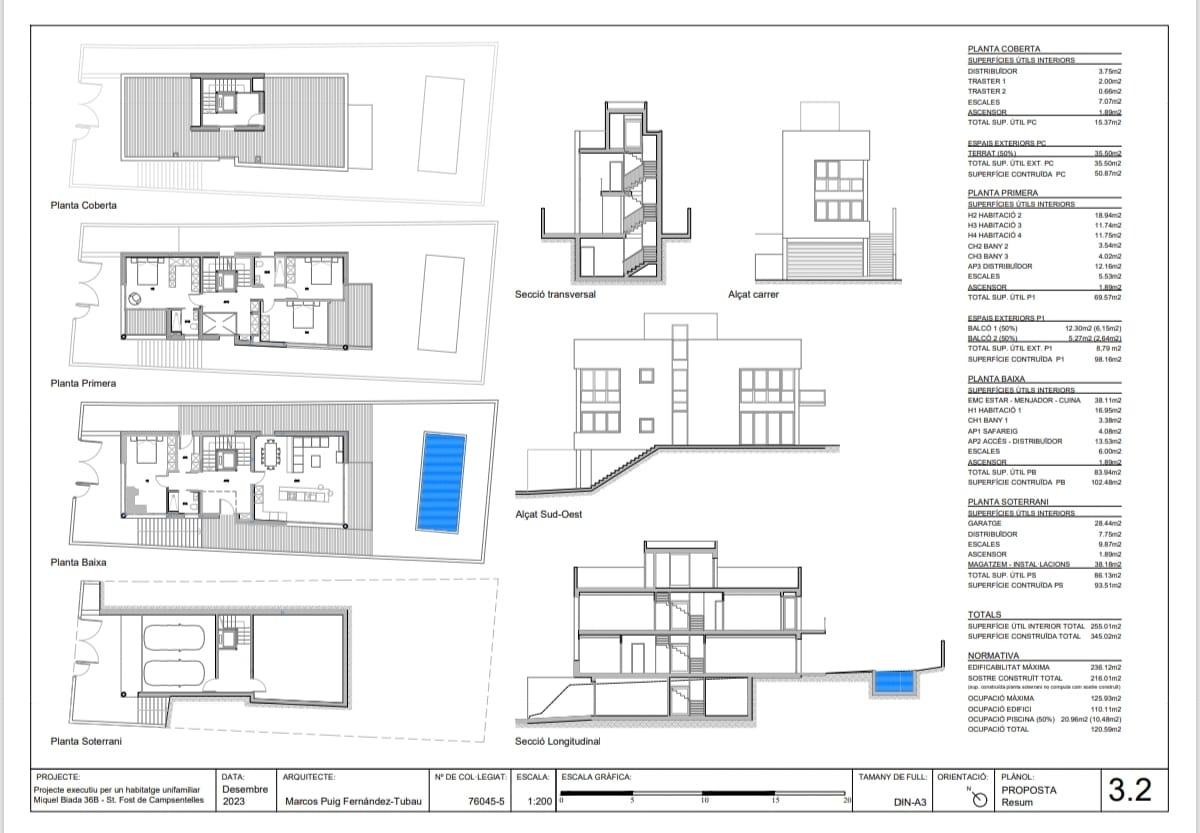
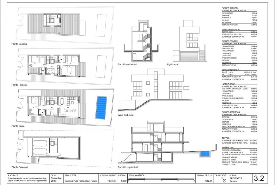
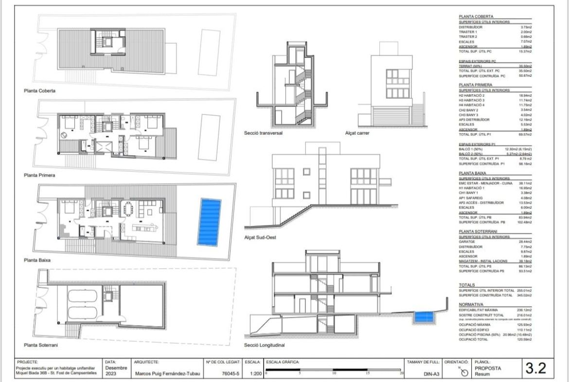
Solar urbano en entorno residencial exclusivo en Sant Fost de Campsentelles~~Se ofrece magnífico solar situado en la calle Miquel Biada nº 36, en una tranquila y cuidada zona residencial de Sant Fost de Campsentelles, rodeada de viviendas unifamiliares de calidad y un vecindario consolidado que garantiza un entorno agradable, seguro y familiar.~~La parcela se encuentra en una urbanización caracterizada por su buen ambiente vecinal, calles ordenadas y un entorno visualmente atractivo, ideal para quienes buscan calidad de vida, privacidad y comodidad, sin renunciar a una buena conexión con los principales núcleos urbanos de la zona.~~El solar se comercializa junto con un proyecto arquitectónico moderno, cuidadosamente diseñado para potenciar los espacios amplios, la luminosidad natural y la funcionalidad de la vivienda. Un proyecto actual que apuesta por líneas limpias, distribución inteligente y una arquitectura pensada para disfrutar del día a día, adaptándose a las necesidades de una vida moderna y confortable.~~Se trata de una oportunidad ideal para construir la vivienda de tus sueños, ya sea como residencia habitual o como inversión a largo plazo, en un entorno que combina tranquilidad residencial con proximidad a servicios, naturaleza y buenas comunicaciones.~~Un proyecto pensado para quienes valoran el diseño, el espacio y la posibilidad de personalizar cada detalle de su futuro hogar, en una ubicación que aporta valor y bienestar.~~Una oportunidad única para convertir un proyecto en una realidad a medida.~~El precio de venta no incluye impuestos ni gastos derivados de la compraventa.~
Detalles
Actualizado en abril 28, 2026 en 2:43 pm- ID del Inmueble SFOST
- Precio 170.000€
- Tamaño del Inmueble 0.00 m²
- Área de terreno 315 m²
- Habitación 0
- Estado del Inmueble Vender
Dirección
Abrir en Google Maps- Dirección: Can boc, Sant Fost de Campsentelles
- Código postal: 08105













